Universal Compatibility & Optional Deck Flashing
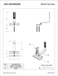
All Tile Hook has been improved to make things easy. The open-slotted design is compatible with both the XR and Aire racking systems. This means only one SKU (QM-ATH-02-M1) across the board. But that’s not all—we’ve also increased the mounting width and vertical adjustment for more flexibility and less interference.
All Tile Hook is a simple, adjustable roof attachment for mounting solar on tile roofs. It works with flat, S, and W tiles, can be used with an available Deck Flashing and utilizes 7/16” hardware—making it a single socket installation. It is fully tested to our rigorous test standards and covered by our 25-year warranty.
 
															All Tile Hook & Deck Flashing Documentation
UL 2703 CERTIFICATION
 
															All IronRidge® Systems have been listed to UL 2703, the standard for evaluating solar mounting systems. This ensures they maintain strong electrical and mechanical connections over an extended period of time in extreme outdoor environments.
25-Year Warranty
 
															IronRidge® products come with a 25-year warranty, guaranteeing they will be free of defects in materials and manufacturing which materially impair the use of the products for the purposes for which they were designed.
 
								 
								 
								 
								